Hệ thống ống đổ rác chung cư – Cấu tạo và nguyên lý hoạt động
Trạng thái:
Còn hàng
Mã sản phẩm: DM21-ODRCN
Số lượng:
Hệ thống ống đổ rác chung cư, ống thu rác nhà cao tầng – Cấu tạo và nguyên lý hoạt động
Trong các chung cư hiện đại, thi công hệ thống ống đổ rác, ống thu rác nhà cao tầng là điều kiện bắt buộc. Hệ thống này sẽ giúp thu gom, vận chuyển rác mà không tốn nhiều công sức của cư dân. Những thông tin sau sẽ giúp bạn hiểu thêm về cấu tạo và nguyên lý hoạt động của hệ thống ống đổ rác chung cư.
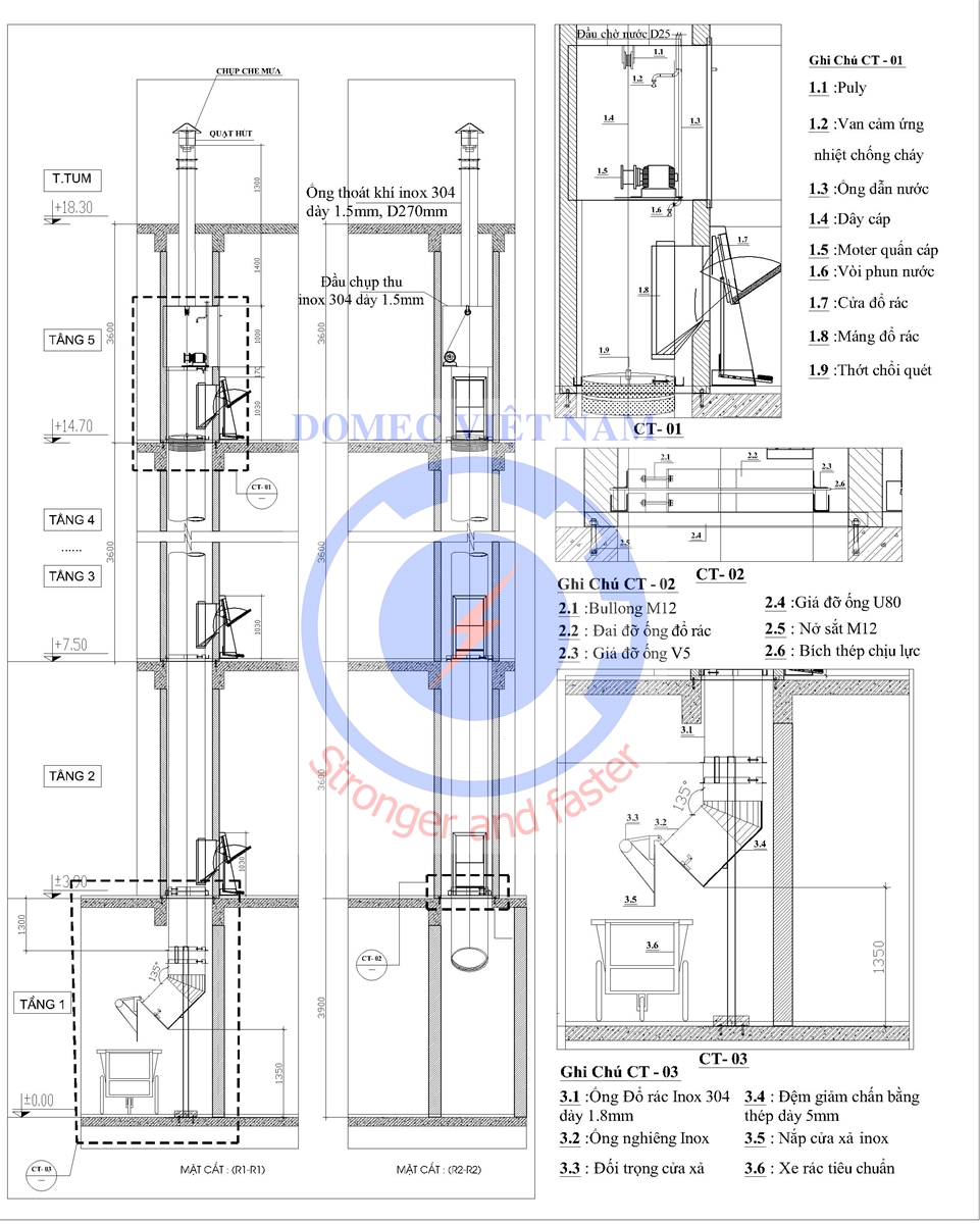
Bản vẽ chi tiết cấu tạo hệ thống ống thu rác, hệ thống đổ rác tại các chung cư

Cấu tạo của hệ thống ống đổ rác chung cư:
Ống đổ rác, ống thu rác nhà cao tầng là thiết bị được thiết kế, lắp đặt dựa trên nhu cầu thực tế của cư dân các chung cư cao tầng. Cấu tạo của hệ thống ống thu gom rác dành cho các chung cư bao gồm:
Ống thu rác, hay còn gọi là ống đổ rác, ống thoát rác, ống thu rác nhà cao tầng
Ống thu rác được làm bằng inox 304 rất bền và có khả năng chống oxi hóa cao. Ống thu rác là bộ phận chính của hệ thống ống đổ rác, có tác dụng thu gom rác từ các tầng và dẫn rác xuống phòng rác để xử lý.

Cửa lấy rác hay còn gọi cửa đổ rác, cửa thu rác, cửa xả rác:
Cửa lấy rác được làm từ inox hoặc thép sơn tĩnh điện, đảm bảo tính thẩm mỹ của mỗi loại công trình. Cửa thu rác được đặt tại mỗi tầng của chung cư, sử dụng để bỏ rác vào ống thu rác.
Ống nghiêng xả rác
Ống nghiêng xả rác là bộ phận kết nối giữa các ống thu rác và thùng chứa rác ở phòng rác chung cư. Ống nghiêng xả rác sẽ được chế tạo thành một đoạn ống có góc chếch 135 độ, giúp rác dễ thoát vào xe rác và được cố định bằng khung, đai.

Ống thông gió
Ống thông gió là bộ phận thoát khí của hệ thống ống đổ rác. Nhờ ống thông gió, hệ thống sẽ giảm tối đa mùi khó chịu do rác thải gây nên.

Hệ thống phun nước
Hệ thống ống đổ rác sẽ bao gồm một số thiết bị phun nước được lắp trong thành ống. Hệ thống này có 2 chức năng: vệ sinh ống sạch sẽ và phun nước phòng hỏa hoạn.
Hệ thống đối trọng
Hệ thống đối trọng cũng được thiết kế nhằm ngăn khả năng lây lan cháy nổ thông qua ống đổ rác. Hệ thống đối trọng được hàn liền vào nắp cửa xả, giúp cửa xả rác luôn luôn đóng kín, khi có rác rơi xuống , đủ trọng lượng cửa xả rác sẽ mở ra để rác rơi vào xe rác.
Nguyên lý hoạt động của ống đổ rác chung cư, ống thu rác nhà cao tầng:
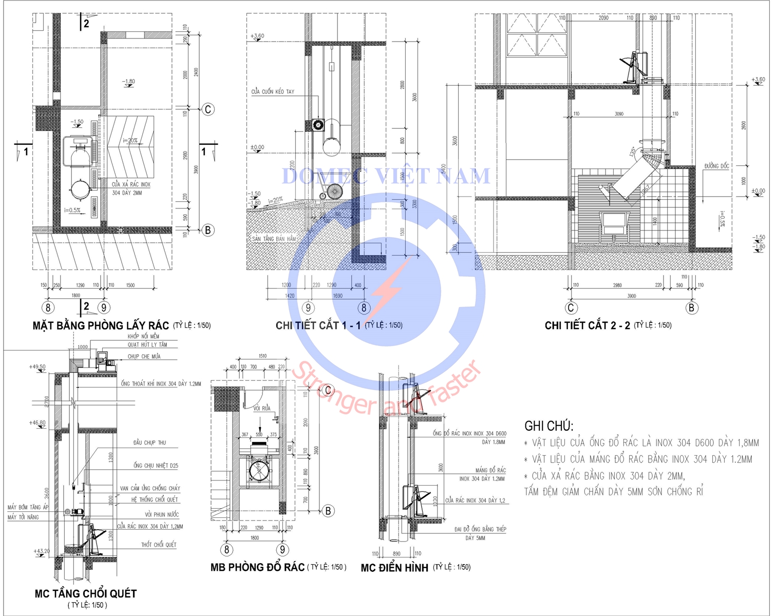
Sơ đồ hệ thống ống thu rác của Công ty cơ điện Domec Việt Nam:
Bản vẽ hệ thống xả rác chung cư, ống thu rác nhà cao tầng do Domec Việt Nam thực hiện:
Với thiết kế hệ thống ống đổ rác, cư dân các căn hộ chung cư sẽ rất thuận tiện trong việc vứt bỏ rác thải. Nguyên lý hoạt động của hệ thống rất đơn giản:

Đổ rác vào cửa nhận rác
Thay vì vận chuyển rác xuống tầng trệt, sân chung cư, cư dân chỉ việc cho rác vào các cửa lấy rác. Cửa này được lắp đặt ở mỗi tầng, luôn được đậy kín và rất dễ đóng, mở.
Rác được vận chuyển xuống phòng chứa rác
Sau khi được cho vào cửa thu rác, rác sẽ theo đường ống dẫn rác, ống thu rác nhà cao tầng chạy xuống đến ống nghiêng xả rác. Từ ống nghiêng, rác sẽ đi vào thùng chứa rác nằm trong phòng rác.
Xử lý rác
Rác từ phòng chứa rác được mang đi xử lý. Thông thường, các chung cư yêu cầu rác phải được xử lý chậm nhất 2 ngày/lần.
Xem thêm: http://domecvietnam.com/bao-gia-cua-do-rac-inox-1018.html
Những lưu ý khi vận hành hệ thống thu gom rác chung cư:
Hệ thống thu gom rác và xử lý rác tạo sự thuận tiện, thoải mái cho cư dân căn hộ cao tầng. Tuy nhiên, chủ đầu tư cần lưu ý những vấn đề sau để vận hành hệ thống được hiệu quả, an toàn:
Vận hành hệ thống phun nước định kỳ:
Định kỳ, ban quản lý cần vận hành hệ thống phun nước để rửa sạch ống đổ rác. Ngoài ra, việc phun nước còn giúp bảo dưỡng hệ thống tốt hơn, tránh lòng ống bị hư hại do một số hóa chất có trong rác gây nên.
Thường xuyên kiểm tra hệ thống đối trọng
Ống đổ rác chung cư đã đảm bảo yêu cầu phòng cháy chữa cháy?
Hệ thống đối trọng cửa xả rác luôn luôn đóng kín vào ống nghiêng xả rác có tác dụng chống cháy lan.
Hệ thống thu gom rác sẽ được lắp đặt đối trọng ở cuối hệ thống tại vị trí cửa xả rác. Ban quản lý cần thường xuyên kiểm tra hệ thống này, đảm bảo an toàn khi có cháy xảy ra.
Tại sao nên lắp đặt hệ thống ống thu gom rác?
Tất cả các chung cư hiện đại đều nghiên cứu, lắp đặt hệ thống thu gom rác. Không thể phủ nhận những lợi ích mà hệ thống này mang lại như:
Tạo sự thuận tiện, nâng cao chất lượng sống của cư dân
Thời gian đổ rác linh hoạt
Giảm chi phí nhân sự quản lý việc thu gom, đổ rác
Đảm bảo vệ sinh cho khu vực hành lang, thang máy của chung cư
Giảm thiểu vấn đề mất vệ sinh khi cư dân trữ rác, hạn chế cháy nổ
Địa chỉ thi công ống đổ rác uy tín tại Hà Nội và trên khắp cả nước.
Công ty cổ phần cơ điện Domec là đơn vị uy tín chuyên thi công các hệ thống thu gom rác chung cư, khách sạn, bệnh viện, trường học. Với việc sử dụng chất liệu tốt nhất như: inox 304,,… hệ thống xả rác inox 304, ống thu rác nhà cao tầng của luôn có độ bền rất cao.
Ngoài ra, Công ty cổ phần cơ điện Domec Việt Nam có đội ngũ kỹ thuật giàu kinh nghiệm sẽ hỗ trợ Quý khách hàng thiết kế, lập biện pháp thi công và lắp đặt hệ thống xả rác inox chung cư, hệ thống thu gom vải ga cho các bệnh viện, khách sạn, tại các tỉnh thành khắp cả nước với chi phí tiết kiệm nhất. Nếu có nhu cầu lắp đặt ống đổ rác chung cư, ống thu rác chung cư, ống thoát rác hãy liên hệ với chúng tôi.
Quý khách có nhu cầu báo giá hệ thống thoát rác nhà cao tầng xin liên hệ với chúng tôi:
Công ty cổ phần cơ điện Domec Việt Nam
Hotline: 091 686 2489.
Email: domecvietnam@gmail.com
Fanpage: https://www.facebook.com/domecvietnam
Thêm vào giỏ hàng thành công
Thêm vào giỏ hàng thất bại
Gửi phản hồi